TT217

Theban tomb 217
Burial site of Ipuy
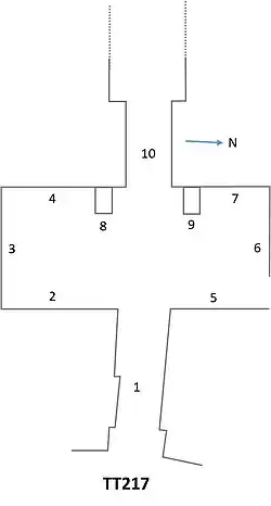
Plan of TT217
LocationDeir el-Medina, Theban Necropolis
DiscoveredBefore 1894
Excavated byArthur Weigall (1911-12)
Metropolitan Museum of Art (1912, 1920)
Kathrin Gabler (2021-)
← Previous
TT216
Next →
TT218

TT217, or Tomb of Ipuy, is the tomb of the ancient Egyptian artisan Ipuy and members of his family in Deir el-Medina, near modern Luxor, Egypt. Ipuy (also transcribed as Apy) was a sculptor active in the reign of Ramesses II of the Nineteenth Dynasty of Egypt.[1]

TT217 is situated on the upper terrace in the western cemetery of the ancient workmen's village of Deir el-Medina. The complex consists of a chapel within a walled courtyard and at least 10 subterranean rooms. The chapel's decoration depicts craftsmen at work in addition to daily life scenes.[2]

The tomb was first published by Jean-Vincent Scheil in 1894 but its location was later lost. The tomb was rediscovered by Arthur Weigall in his 1911-12 excavation season and subsequently excavated by the Metropolitan Museum in 1912 and 1920, and by Bernard Bruyère in the mid-1920s.[2][3] Since 2020 Kathrin Gabler has carried out further investigation and documentation of the tomb.[2]

References

Citations

  1. ^ Porter & Moss 1960, pp. 315–317.
  2. ^ a b c Gabler 2022.
  3. ^ Garis Davies 1927, p. 33.

Works cited

  • Gabler, Kathrin (2022). "TT 217: La Tombe d'Ipouy (i) (Deir el-Médina (2021): Mission d'étude et de restauration)". Bulletin archéologique des Écoles françaises à l'étranger. doi:10.4000/baefe.6243. Retrieved 24 March 2024.
  • Garis Davies, N. de (1927). Two Ramesside Tombs at Thebes. New York: The Metropolitan Museum of Art. Retrieved 10 February 2024.
  • Porter, Bertha; Moss, Rosalind L. B. Moss (1960). Topographical Bibliography of Ancient Egyptian Hieroglyphic Texts, Reliefs, and Paintings I: The Theban Necropolis Part 1. Private Tombs (PDF) (1970 reprint ed.). Oxford: Griffith Institute. Retrieved 10 February 2024.