Værnes Church

Værnes Church
Værnes kirke
View of the church
63°27′15″N 10°57′18″E / 63.454281809°N 10.954871177°E / 63.454281809; 10.954871177
LocationStjørdal Municipality, Trøndelag
CountryNorway
DenominationChurch of Norway
Previous denominationCatholic Church
ChurchmanshipEvangelical Lutheran
History
StatusParish church
Foundedc. 1130 (1130)
Consecratedc. 1190 (1190)
Architecture
Functional statusActive
Architectural typeLong church
Completedc. 1190 (1190)
Specifications
Capacity370
MaterialsStone
Administration
DioceseNidaros bispedømme
DeaneryStjørdal prosti
ParishStjørdal
TypeChurch
StatusAutomatically protected
ID85875

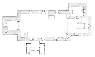
Værnes Church (Norwegian: Værnes kirke) is a parish church of the Church of Norway in Stjørdal Municipality in Trøndelag county, Norway. It is located just south of the town of Stjørdalshalsen, along the Stjørdalselva river, and just east of the Trondheim Airport, Værnes. It is the church for the Stjørdal parish which is also the seat of the Stjørdal prosti (deanery) in the Diocese of Nidaros. The white, stone church was built in a long church style in five stages from 1130 until 1190 by using plans drawn up by unknown architect.[1] The church seats about 370 people.[2][3][4]

History

The earliest existing historical records of the church date back to the year 1391, but the church was built before that time. The church was probably constructed during the 12th century in several stages from around 1130-1190. It is a stone building with a rectangular nave, a narrower, rectangular chancel and a tower to the west. The choir was completed around the year 1140 and the nave and base of the tower were finished around the year 1190. During a construction project in the 13th century, the tower was raised by two floors, the windows in the chancel and the nave were widened inside, and the base of the tower was likely vaulted at the same time. A sacristy was built on the north side of the choir in 1506-1507.[5][6]

In 1814, this church served as an election church (Norwegian: valgkirke).[7] Together with more than 300 other parish churches across Norway, it was a polling station for elections to the 1814 Norwegian Constituent Assembly which wrote the Constitution of Norway. This was Norway's first national elections. Each church parish was a constituency that elected people called "electors" who later met together in each county to elect the representatives for the assembly that was to meet at Eidsvoll Manor later that year.[7][8]

The church and tower barely survived World War II. The tower is clearly visible from a long distance, and there were fears that it could be used as a landmark and would be bombed. The church was painted in camouflage colors, and was repainted in its normal white color after the war was over.[6]

See also

References

  1. ^ Stige, Morten; Pettersson, Kjell Erik, eds. (2016). Værnes kirke, en kulturskatt i stein og tre (in Norwegian). Stjørdal historielag with Institute for Comparative Research in Human Culture. p. 449. ISBN 9788299524438.
  2. ^ "Værnes kirke". Kirkesøk: Kirkebyggdatabasen. Retrieved 25 March 2018.
  3. ^ "Oversikt over Nåværende Kirker" (in Norwegian). KirkeKonsulenten.no. Retrieved 25 March 2018.
  4. ^ Storsletten, Ola, ed. (20 August 2012). "Værnes kirke". Store norske leksikon (in Norwegian). Kunnskapsforlaget. Retrieved 25 March 2018.
  5. ^ "Værnes kirke" (in Norwegian). Norwegian Directorate for Cultural Heritage. Retrieved 8 June 2021.
  6. ^ a b "Værnes kirke". Norges-Kirker.no (in Norwegian). Retrieved 8 June 2021.
  7. ^ a b "Valgkirkene". LokalHistorieWiki.no (in Norwegian). Retrieved 6 June 2021.
  8. ^ "Om valgene". Valgene i 1814 (in Norwegian). Arkivverket. Retrieved 6 June 2021.